16 августа 2015 /
Столик садовника!

Столик садовника!

Столик садовника!
4,5/5
Голосов: 2

Подготовили эскиз столика и на основании согласованного эскиза разработали чертежи.

 

Столик садовника.

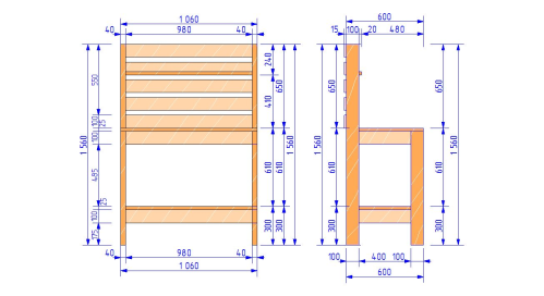
Основные размеры стола: 1060х1560х600, высота до рабочей поверхности стола 900 мм.

Последовательность работы.

На первом этапе подготовим каркас стола. Электрическим лобзиком напилим из бруса 40х100ммм четыре стойки (ножки) и четыре перекладины.

Шуруповертом скрепим детали шурупами и получим две опорные части стола.

Далее закрепим раму стола, которая будет обеспечивать жесткость всей конструкции.

Далее монтируем столешницу стола из доски 25х120мм, закрепим с помощью шурупов и шуруповерта нижнюю столешницу стола (полочку) для размещения садового инвентаря. Монтируем опорную стенку стола, выполненную из доски 15х100мм (вагонка), и закрепим небольшую полочку.

Шлифовальной машинкой отшлифуем детали, уберем заусенцы. Далее загрунтуем и все готово.

МАТЕРИАЛЫ

  • брус 40х100 мм; доска 25х120мм; доска 15х100мм (вагонка) для задней стенки стола; краска акриловая, белого цвета; шурупы 5х70мм; 4,5х50мм; гвоздики (финишные) 2х34мм.

ИНСТРУМЕНТЫ

  • электрический лобзик; шлифмашинка; шуруповерт; кисточки; карандаш; рулетка.
Шаг 1
Столик садовника!. Шаг 1
Чертеж
Шаг 2
Столик садовника!. Шаг 2
Изготовим стоечки (ножки стола).
Шаг 3
Столик садовника!. Шаг 3
Подготовим каркас стола.
Шаг 4
Столик садовника!. Шаг 4
Произведем сборку стола.
Шаг 5
Столик садовника!. Шаг 5
Окрасим наш стол за два раза.
Шаг 6
Столик садовника!. Шаг 6
Когда краска высохнет, расставим все необходимые инструменты и принадлежности для садового столика.
Шаг 7
Столик садовника!. Шаг 7
И вот наш столик для садовника готов!!!!!!!!! Желаем Вам творческих идей и отличного урожая!!!!!!

ПОХОЖИЕ МАТЕРИАЛЫ